耙吸式挖泥船泥门启闭液压系统设计(含CAD零件图装配图)

耙吸式挖泥船泥门启闭液压系统设计(含CAD零件图装配图)(任务书,开题报告,论文说明书14500字,CAD图5张)
摘要
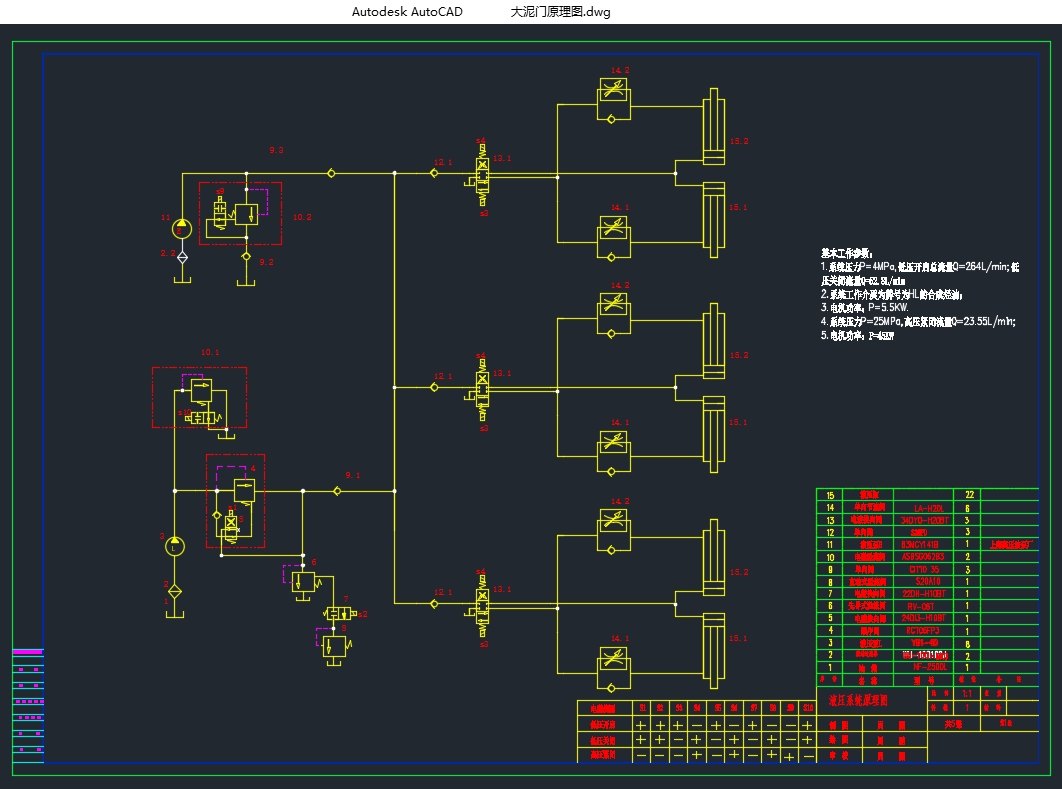
此次设计主要关于耙吸式挖泥船的启闭,即打开与关闭大小泥门,设计的内容是用液压系统来实现重量很大的泥门自动启闭,减少人力损耗,实现一些人力无法完成的事情。通过该系统的设计,掌握实际机械液压系统的设计原理和方法,作出液压系统原理图,熟练掌握相关设计软件的使用方法和设计资料的运用。
本次设计完成了大小泥门整个启闭过程的液压原理图,并且将启闭过程中各部分起的作用一一解释清楚,并研究了一些故障的产生与排除的方法。
该论文针对大泥门分为了三个工况,需要对每个工况进行分析,并设计出最合理的液压系统,将小泥门分为两个工况,并设计液压系统。增加了许多辅助元件来使系统合理化。
关键词:泥门启闭;工况分析 ;高压紧闭
Abstract
The design is mainly about the trailing suction dredger opening and closing that is open and close the size of the mud door the design of the content is to use the hydraulic system to achieve a great weight of the mud door automatically open and close reduce human losses to achieve some manpower The finished thing. Through the design of the system master the design principles and methods of the actual mechanical hydraulic system make the hydraulic system schematic diagram master the relevant design software and the use of design information. [资料来源:Doc163.com]
This design completed the size of the mud door of the whole process of opening and closing the hydraulic schematic diagram and the opening and closing of the various parts of the role of a clear explanation and studied some of the fault generation and elimination methods.
The paper is divided into three working conditions for the large mud door. It is necessary to analyze each working condition and design the most reasonable hydraulic system. The small mud gate is divided into two working conditions and the hydraulic system is designed. A number of auxiliary components have been added to rationalize the system.
Key words :mud gate opening and closing ; Analysis of working conditions conditions analysis high pressure closed





[资料来源:Doc163.com]
目录
第1章绪论 1
1.1关于疏浚业 1
1.2耙吸式挖泥船的基本介绍 1
1.3国际新一代耙吸式挖泥船的发展 3
2.液压系统设计 3
2.1选择液压系统的类型 4
2.2对大小泥门的启闭进行设计 4
2.2.1大泥门的工况分析与设计要求 4
2.2.2拟定大泥门的液压系统原理图 5
2.2.3小泥门的工况分析与设计要求 10
2.2.4拟定小泥门的液压原理图 10
2.3液压元件的计算和选型 13
2.3.1已知条件 13
2.3.2系统元件的选型 14
2.3.3液压辅助元件的选型 23
2.3.4液压系统性能验算 27
3.集成块的设计 29
4液压站的结构设计 30
4.1液压泵站的类型及其组件配置形式的选择 30
4.1.1液压泵站类型的选择 30
4.1.2液压元件的配置形式 31
4.2油箱的设计 31
5环境影响及经济性分析 32
5.1环境影响分析 32
5.2经济性分析 32
6总结与展望 33
中外文参考文献 34
[资料来源:http://Doc163.com]
上一篇:大型港口门座起重机回转支承齿圈轮齿失效分析(含SolidWorks三维)
