四层7242平米南京钢框架结构工业厂房设计(含建筑图结构图)

四层7242平米南京钢框架结构工业厂房设计(含建筑图结构图)(开题报告,外文翻译,论文计算书24000字,CAD建筑图10张,CAD结构图17张)
摘要
随着我国建筑事业与炼钢工业的不断发展,以钢结构为主要结构布置的钢结构建筑被越来越多的人接受,成为广受欢迎的建筑类型。多层钢结构工业厂房的设计可以充分发挥出钢结构的优势,减轻厂房的自重,增强结构的抗震性能,提高厂房的利用率,同时钢结构厂房建设期较短。在工业厂房建设过程中,一些设计人员也以此为主要设计思路,并综合思考其他各种因素,以设计出优质的多层钢结构厂房,从而提高厂房的质量、安全性以及经济效益等。
本工程采用钢框架结构,采用箱型钢柱,H型钢梁构成框架体系,由于楼层较低,不设支撑。梁柱节点为栓焊组合节点,其中梁翼缘为对接焊缝连接,腹板为摩擦型高强螺栓连接。楼板为压型钢板组合楼板,楼板用栓钉跟钢梁焊接构成整体,墙采用NALC板,基础为钢筋混凝土柱下独立基础。
关键词: 钢结构 框架设计 节点
Abstract:With the continuous development of China's construction industry and the steel industry, the steel as the main structural arrangement of steel buildings are accepted by more and more people , became a popular type of construction.Medium steel industrial factory design can give full places to the advantages of steel structures, reduce weight, enhance the seismic performance of the structure, improve the utilization of the factory, as well as the construction of shorter steel factory.In the industrial plant construction process, some designers used this as the main design ideas and integrated thinking about other kinds of factors in order to design high-quality multi-layer steel factory, thus improving factory quality, security and economic benefits. [资料来源:http://Doc163.com]
This project uses the steel portal frame construction, uses the Box steel girder, the H steel pole constitution frame system, does not suppose the strut therefore the choice component section size
is bigger. The beam and column the pitch point welds the combination pitch point for the hitch,the beam edge, excels in the bold fastening for the friction, the web plate for the butt welding seam connection. the floor with steel nail with the steel girder welding constitution whole, the wall uses adds the steam concrete masonry unit, the foundation for the reinforced concrete column under strip footing.
Key words: Steel structure,frame design,pitch point
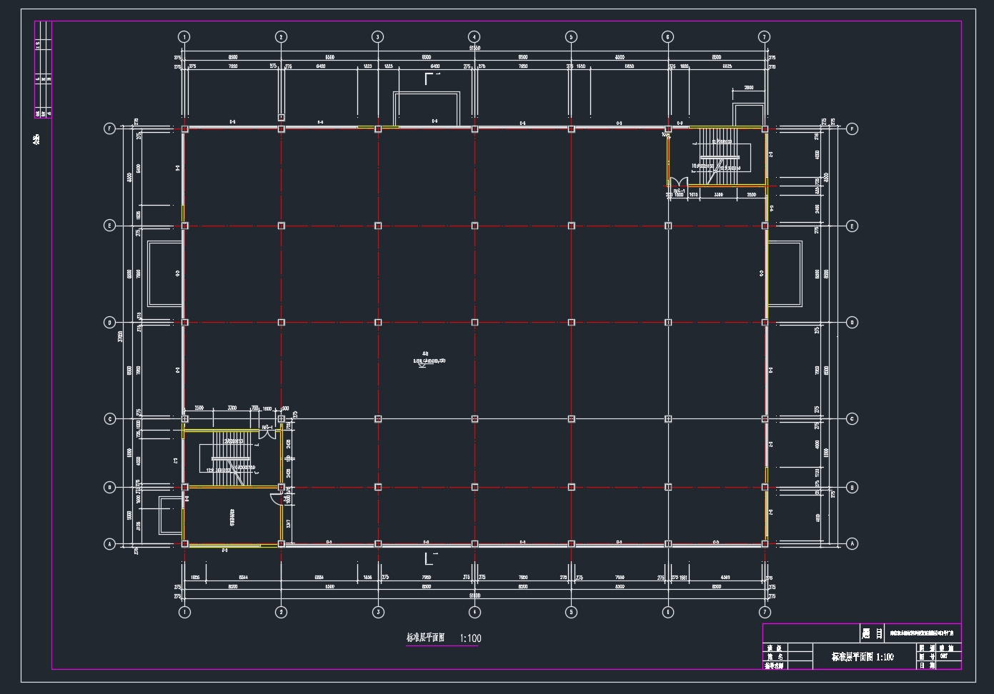
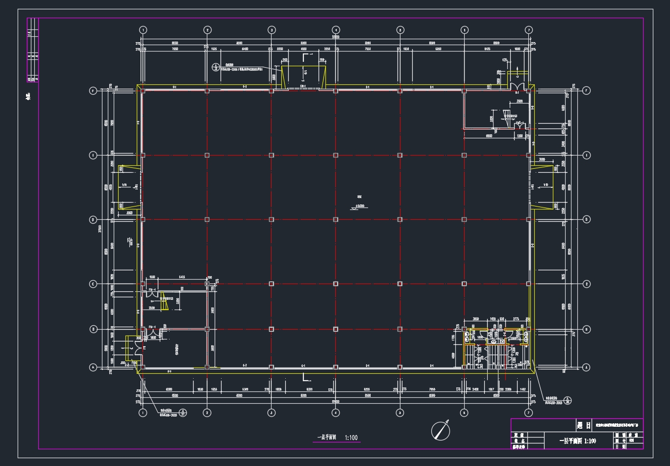
工程概况
本工程为南京某新材料科技发展有限公司3号厂房。建筑结构为钢框架结构。该厂房主体4层,其中第四层因工艺设备布置需要,抽去中间柱列,变成大跨钢框架,底层层高5.5m,二到四层层高4.5m。屋盖采用有檩屋盖(彩钢板)体系。无地下室,基础为独立基础,钢柱脚采用外包式柱脚。建筑结构安全等级为二级,设计使用年限为50年。
[资料来源:https://www.doc163.com]




[来源:http://Doc163.com]



目录
第一章 设计概况—————————————————1
1.1工程概况———————————————————————1 [资料来源:Doc163.com]
1.2 设计过程———————————————————————1
第二章 建筑设计方案———————————————2
2.1 平面设计———————————————————————2
2.2 立面设计———————————————————————2
2.3 排水设计———————————————————————2
第三章 结构设计方案———————————————3
3.1 设计资料———————————————————————3 [资料来源:http://Doc163.com]
3.2结构选型与结构布置——————————————————3
3.3 材料选用———————————————————————4
3.4 构件截面尺寸初选———————————————————4
3.5 框架计算简图及梁柱线刚度———————————————5
第四章 荷载计算—————————————————7
4.1 荷载标准值计算————————————————————7
4.2 风荷载计算—————————————————————12 [资料来源:www.doc163.com]
4.3 水平地震荷载计算——————————————————13
第五章 内力计算————————————————21
5.1 恒荷载作用下的内力计算———————————————21
5.2 地震作用下横向框架的内力计算————————————34
5.3 活荷载作用下的内力计算———————————————40
5.4风荷载作用下的内力计算————————————————41
第六章 内力组合—————————————————42
第七章 截面设计—————————————————60
7.1梁截面设计——————————————————————60
7.2 框架柱设计—————————————————————64
第八章 楼面设计—————————————————71
8.1截面形式及材料参数——————————————————71
8.2 荷载及内力计算———————————————————72
8.3 组合板的验算 ————————————————————73
第九章 节点设计—————————————————77 [资料来源:https://www.doc163.com]
9.1 梁柱节点域验算———————————————————77
9.2 框架节点设计————————————————————78
9.3 柱柱节点设计————————————————————87
9.4 柱脚设计——————————————————————89
第十章 楼梯设计—————————————————93
10.1 荷载计算——————————————————————93
10.2 平台梁的设计与验算————————————————93 [资料来源:http://doc163.com]
10.3 梯段梁的设计与验算—————————————————94
10.4 平台边梁的设计与验算————————————————96
第十一章 基础设计————————————————97
11.1设计依据——————————————————————97
11.2设计参数——————————————————————97
11.3确定基础尺寸————————————————————97
11.4基础结构设计————————————————————99 [资料来源:Doc163.com]
结束语—————————————————————103
参考文献————————————————————104
致谢——————————————————————105 [资料来源:https://www.doc163.com]
上一篇:四层2940平米义乌市某工艺品公司办公楼设计(含建筑图结构图)
下一篇:五层南京钢框架结构某公司工业厂房设计(含建筑图结构图)
